• Mobile: +919137718446
  • info@dndrawing.com
  • CONSTRUCTION SECTORS
    • BUILDINGS
    • FITOUT SPACES
    • INFRASTRUCTURE
    • INDUSTRIAL (NEW)
  • AEC BIM
    • ARCHITECTURE BIM
    • STRUCTURE BIM
    • INTERIOR BIM
    • DESIGN BUILT BIM
    • SURVEY BIM (POINT CLOUD)
    • FAMILY MODELLING
    • INFRASTRUCTURE BIM
    • CIVIL & SITE UTILITY
    • INDUSTRIAL BIM (NEW)
  • MEP DESIGN & BIM
    • MECHANICAL SYSTEM
    • PLUMBING ( HYDRAULIC) SYSTEM
    • ELECTRICAL SYSTEM
    • FIRE PROTECTION SYSTEM
  • MEP CONSULTING
    • MEP SYSTEM
    • DESIGN INTEND
    • MEP SOLUTION - BUILDING
    • MEP FITOUT SOLUTION
  • HEATING DESIGN
    • HEAT LOSS CALCULATIONS
    • UNDERFLOOR HEATING (UFH)
    • RADIATOR SELECTION
    • HEATING PIPING NETWORK
    • COLD & HOT WATER NETWORKS
    • HEAT RECOVERY VENTILATION
  • CAD SERVICES
    • CAD CONVERSION
    • REDLINING / MARK-UPS
  • PROJECTS
    • AEC BIM
    • MEP DESIGN & BIM
    • MEP CONSULTING
    • UFH & HEATING DESIGN
    • CAD SERVICES
  • ABOUT US
    • TEAM
    • PRESS RELEASE
    • BLOG
    • BROCHURES
  • CONTACT US
  1. HOME
  2. PROJECT
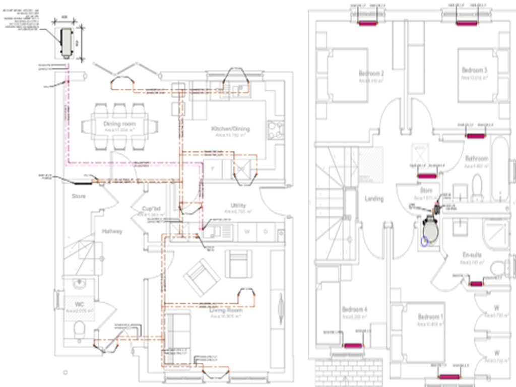
  3. HEATING DESIGN

HEAT LOSS CALCULATION

25 HIGH STREET

GLENTHRONE HOUSE

OAK DRIVE HOUSE

UFH DESIGN

GARG THOMAS NEW HOUSE

ISLANDMAGEE PRIMARY SCHOOL

LOUISE & BARRY MURRAY

CASTLE TOWER SCHOOL

HEATING & PLUMBING DESIGN

HOUSE TYPE AFH

ST CUTHBERTHS WELLS

RIDGE VIEW

MILL HOUSE

HEAT RECOVERY VENTILATION (MVHR)

HOUSING PROJECT

WILLIAM

 

Quick Links

  • AEC BIM
  • MEP Design & Bim
  • MEP Consulting
  • UFH & Heating
  • CAD SERVICES

Contact

  • Mobile: +919137718446
  • Email: info@dndrawing.com

Copyright D&D. All rights reserved.